19th CENTURY SHOWROOM

Milano, IT, 2014

Le corti milanesi, piccole meraviglie racchiuse all’interno di palazzi storici, sono oggi oggetto di nuova attenzione.
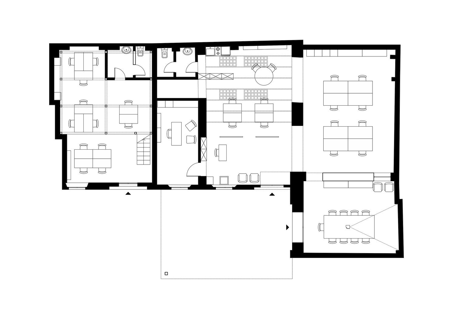
In una di queste corti si trova uno spazio che un tempo ospitava un magazzino della carta. Il progetto prevede di riconvertire tale spazio in ufficio, preservando la conformazione e i dettagli originari dello spazio. 

Il bianco del soffitto e delle pareti alte più di quattro metri contrasta con un pavimento in resina verde, che attraversa interamente gli spazi della pianta aperta. 

Nonostante la collocazione al piano terra e il numero limitato di finestre, lo spazio è molto luminoso, moderno e perfettamente integrato con la corte su cui si affaccia.

 

project team:
alessandro pasini, tomaso piantini. marta scarcia
con architects srl

attività svolte:
progettazione architettonica, direzione lavori, progettazione illuminotecnica

photo credit: andrea fongo